螺纹模具的设计与制造
已有人阅读此文 - -注塑产品螺纹格外螺纹和内螺纹二种,精密度不太高的外螺纹一般用哈夫块成形,而内螺纹则大多数必须卸螺纹设备。
今日简易详细介绍内螺纹出模方式,关键详细介绍齿轮的测算和挑选。
一、卸螺纹设备归类
1、按姿势方法分
① 螺纹型芯旋转,推板促进商品摆脱;
② 螺纹型芯旋转另外倒退,商品当然摆脱。
2、按驱动器方法分
① 液压缸 齿轮齿条


② 油电机/电动机 传动链条

③ 齿轮齿条 光洁度齿轮

④ 来福线螺帽


二、设计方案流程
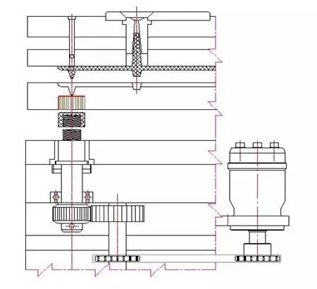
务必把握商品的下列数据信息(见下面的图)
①“D”――螺纹外
②“P”――螺纹牙距
③“L”――螺纹牙长
④ 螺纹规格型号/方位/个数
⑤ 凹模总数

2、明确螺纹型芯旋转匝数:
U=L/P Us
U 螺纹型芯旋转匝数
Us 安全性能,为确保彻底旋出螺纹所加容量,一般取0.25~1
3、明确齿轮变位系数、齿数和传动比:
变位系数决策齿轮的齿厚,齿数决策齿轮的直径,传动比决策啮合齿轮的转速比。
在这以前必须讲一下齿轮的主要参数和啮合标准。
三、齿轮的主要参数和啮合标准
模貝的卸螺纹组织中大多数运用的是直齿圆柱齿轮,并且一般全是渐开线齿轮直齿圆柱齿轮,因而下边就以渐开线齿轮直齿圆柱齿轮为研究对象。
1 齿轮传动系统的基础规定
① 规定瞬时速度传动比稳定不会改变
② 规定有充足的承载力和较长的使用期限
2、 直齿圆柱齿轮啮合运动定律
两齿轮廓无论在哪里触碰,过点接触所做的两啮合齿轮的公法线,务必与二轮心连心线交叉于一点“C”,那样才可以确保齿轮的瞬时速度传动比不会改变。将全部“C”点连起來就变成两个外切圆,称作分度圆,分度圆圆心距即齿轮圆心距。详细下面的图

3、渐开线齿轮直齿圆柱齿轮主要参数
齿厚------“d”表明
分度圆直径--------“S”表明
齿轮齿距--------“p”表明
齿轮齿厚--------“sk”表明
齿轮齿槽宽--------“ek”表明
齿轮齿数--------“z”表明
齿轮变位系数--------“m”表明
齿轮齿轮压力角--------“�弧北硎�
齿轮传动比--------“i”表明
齿轮管理中心距--------“l”表明

来源于:模貝人杂志期刊

